Le CNA/CCRD est un projet commun de l’Etat du Luxembourg et la Ville de Dudelange.
Cette opération est très emblématique de la capacité d’un état à articuler un projet national (le Centre National de l’Audiovisuel qui est l’équivalent de l’INA en France) et un projet territorial (le Centre Culturel Régional de Dudelange) sur un même site, dans un même bâtiment, et en parfaite synergie fonctionnelle. Le travail confié à AG Studio en 2000 demandait une grande précision dans la définition des imbrications fonctionnelles, de la gestion des zones à statuts et à rythmicité différentes, le tout dans un esprit d’ensemble nettement perceptible. Il s'agissait également, avec les spécialistes du CNA dirigés par Jean Back son directeur, d'anticiper les mutations technologiques continues en matière de multimédia.
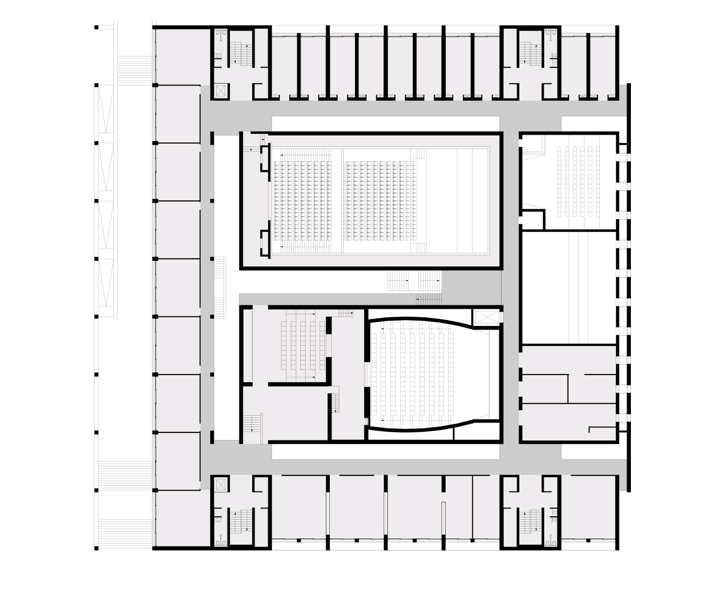
Le Centre National de l’Audiovisuel est une structure professionnelle d’état qui produit, réalise et archive des documents audio, vidéo et photographiques du pays. Le CNA est une structure de haute technologie dans l’archivage et la mise à disposition d’un patrimoine filmique et sonore considérable. C’est aussi un lieu de retraitement de ces archives, avec un savoir faire reconnu internationalement (il a traité notamment « La belle et la bête » de Cocteau) et de promotion de la création cinématographique au Luxembourg. Il possède un studio d’enregistrement, un plateau de tournage, une salle de projection ainsi que des espaces d’archivage et de distribution des contenus de grande capacité.
Une médiathèque, un salon multimédia, et une salle d’exposition complètent le CNA.
Le Centre Culturel Régional de Dudelange regroupe un Conservatoire de musique de 800 élèves, une salle de répétitions pour l’harmonie de Dudelange et des ateliers de pratique musicale.
L’ensemble dispose d’un auditorium de qualité professionnelle de 500 places, d’une salle de projection de 144 places et d’un restaurant qui sont exploités par le CNA et le CCRD
Le projet architectural a été implanté sur une partie du terrain cédé par Arcelor-Mittal. Il a été confié à Paul Bretz, architecte à la fois puriste et humaniste, très à l'écoute, qui a brillamment géré la complexité du programme dans un bâtiment d’une grande pureté de plan, extrêmement soigné, mais également unanimement apprécié pour son ergonomie, ses qualités acoustiques, son appropriabilité.