Zenata est une ville nouvelle éco-conçue située au Maroc, entre Casablanca et Mohammedia dont la création a fait l’objet d’un protocole d’accord signé en présence du roi du Maroc Mohammed VI.
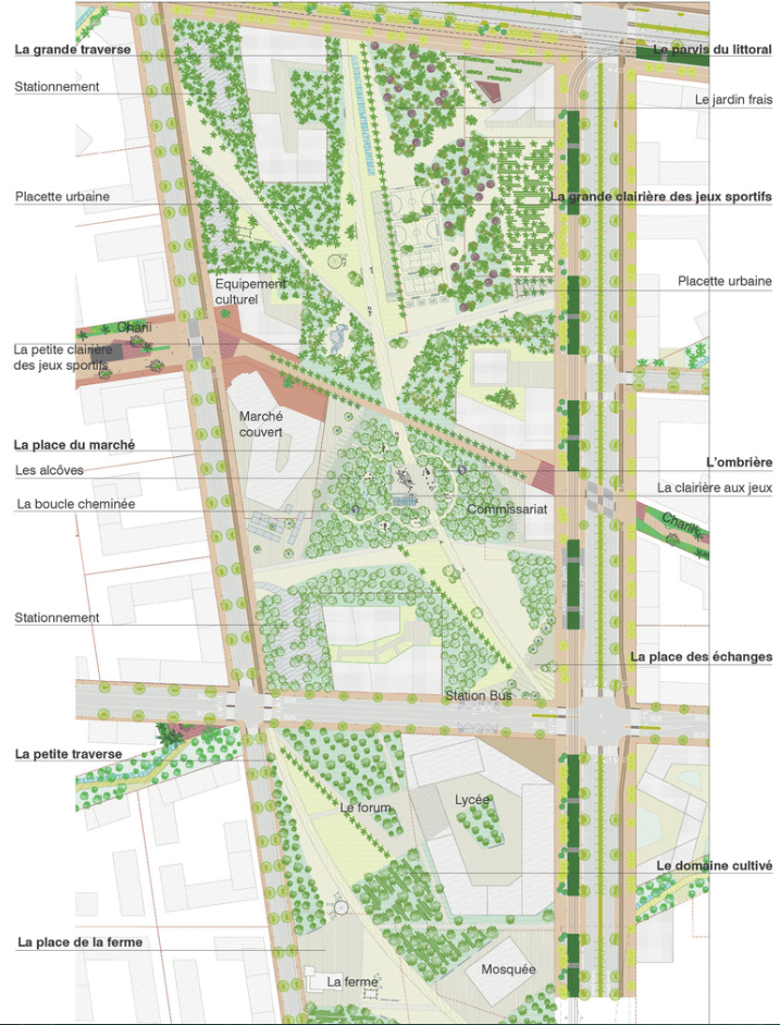
La mission avait pour objet la définition d’une offre « d’animations » pour le parc central de l’éco-cité Zenata. La particularité de cet objet tenait à son aspect prospectif et l’absence de contexte urbain existant : l’éco-cité Zenata est en effet un quartier en phase d’urbanisation, dont le plan d’aménagement a été arrêté mais dont seulement quelques bâtiments ont été réalisés à ce jour.
En outre, le quartier de Zenata, bien que rattaché à la commune d’Aïn Harrouda, se trouve dans une situation géographique déconnectée d’un tissu urbain existant : son bassin de population de référence sera donc essentiellement endogène.
Ces caractéristiques fixaient le cadre programmatique de l’étude et ont conditionné la nature des réponses proposées :
- le concept « d’animation » retenu embrasse essentiellement des activités commerciales ou des aménagements, compte tenu des incertitudes liées à la programmation d’équipements publics. En effet, en l’absence de population cible résidente et de maître d’ouvrage identifié, il semblait peu réaliste de supposer d’importants investissements publics sans un besoin clairement exprimé. Bien qu’elles puissent nécessiter des investissements publics, les réponses proposées reposent en grande partie sur des initiatives privées de façon à s’inscrire dans une logique d’offre et de demande évolutive, et apte à accompagner le développement urbain de l’éco-cité ;
- la localisation des activités au sein du parc ne peut être fixée précisément en l’absence de données sur la nature du tissu urbain et de l’offre commerciale environnante.
La solution privilégiée a donc consisté à définir une offre globale cohérente déclinant un « catalogue » d’activités pouvant être implantées au gré des besoins et de l’urbanisation du secteur :
- les animations proposées pour le parc répondent à une logique d’offre de proximité, justifiée à la fois par la situation géographique de l’éco-cité mais également par les conclusions des focus groups réalisés, à l’occasion desquels les personnes interrogées ont listé la « proximité » comme deuxième critère le plus important dans les motifs de fréquentation d’un parc, qui pour la majorité des publics doit se trouver à moins de 20 min du domicile
- les évolutions rapides que connait le secteur Zenata en raison de son urbanisation en cours soulèvent une problématique de temporalité des réponses programmatiques. Cette contrainte est déterminante pour le travail de programmation et a conduit à adopter une approche évolutive et adaptable : l’étude propose ainsi deux scénarios s’inscrivant chacun dans des échelles temporelles différentes mais pouvant s’articuler entre elles.
Cette mission a été conduite par une équipe associant AG Studio, pour la définition du positionnement du Parc, avec une restitution des attentes et besoins de la population et la définition d’un positionnement du parc et de l’offre d’animation (y compris l'offre de restauration et les kiosques), et Espelia pour la définition du modèle de gestion, du financement, et du process de sélection du gestionnaire / animateur du parc central.