La ville de Saint-Priest, à une encablure de Lyon, constitue désormais une cité de résidence alternative à Lyon pour de nombreuses familles. Ce renouvellement important et continu de la démographie crée des besoins nouveaux d’équipements culturels pour un public désormais beaucoup plus exigeant. La restructuration du théâtre de la ville, le Théâtre Théo Argence, pour une série de remises aux normes a donné appui à une refondation programmatique profonde dont AG Studio a eu la charge. Deux concours se sont succédés pour permettre de cadrer la formule idéale dont, au final, les architectes HBAAT ont été lauréats.
La position urbaine du théâtre, en fond de place du marché (place Ferdinand Buisson), dans une vision lointaine assez iconique, mais de « profil », a questionné le nouveau rapport d’un lieu de culture avec la ville. Car l’entrée initiale était désormais située face à une opération de logement récente et peu qualitative. A l’arrière le parc du château constitue un fond de décor inédit.
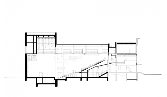
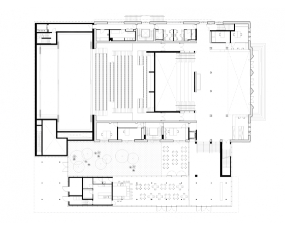
AG Studio a mené une réflexion approfondie avec la collectivité et la maîtrise d’usage pour redéfinir, à parti d’un existant contraignant, les standards d’un nouveau lieu de diffusion. Le programme arrêté comprend une grande salle partiellement modulable de 630 places/900 debout, une petite salle gradinée de 105 places située à l’aplomb de l’ancien hall et une nouvelle logistique théâtrale (scénique, administrative, artistique). Mais le travail programmatique le plus approfondi a été celui de la conception d’un nouvel accueil. Le point de départ a été la reprise de l’idée même d’accueil d'un théâtre de ville qui était à l'époque dans la grande lignée des "maisons du peuple", en lui conférant un rôle de tiers lieu, ouvert en permanence et support d’une vie artistique et culturelle parallèle à celle du grand lieu. Celui-ci prend la forme d’un café original en fond de place urbaine et en greffe contemporaine sur le bâtiment des années 30. Il se poursuit à l’intérieur par une reprise de l’espace sous gradin dont notre étude de faisabilité avait permis de prendre conscience de l’importance volumique une fois cet espace débarrassé des sanitaires et d’un immense dégagement inutile.
C’est l’équation qui a été donnée à Haart Bertelot avec le soutien de Richard Klein pour l’approche patrimoniale et de Changement à Vue pour la scénotechnie, Kahle pour l’acoustique et Verdi pour la technique.