L’Académie Fratellini, fondée en 1974 par Annie Fratellini et Pierre Etaix, est l’une des grandes institutions d’apprentissage des arts du cirque en France. Installée en 2003 à proximité du Stade de France, sur l’un des anciens parkings aériens, elle a été conçue sur un projet de Construire (Patrick Bouchain et Loïc Julienne, paysagiste Liliana Motta) et a reçu à cette occasion le prix de l’Équerre d’argent 2003. Le budget initial ayant été particulièrement contraint, la conception du projet s’est voulue particulièrement frugale et a constitué une référence par son élégance et sa luminosité : 3 plateaux d’exercice, un grand chapiteau, une grande halle, des espaces de préparation ont permis à plusieurs générations de jeunes artistes de se former.
Néanmoins, après plus de 15 ans d’exploitation, il s’est avéré qu’une mutation dans le sens d’une pérennisation fonctionnelle et technique était indispensable.
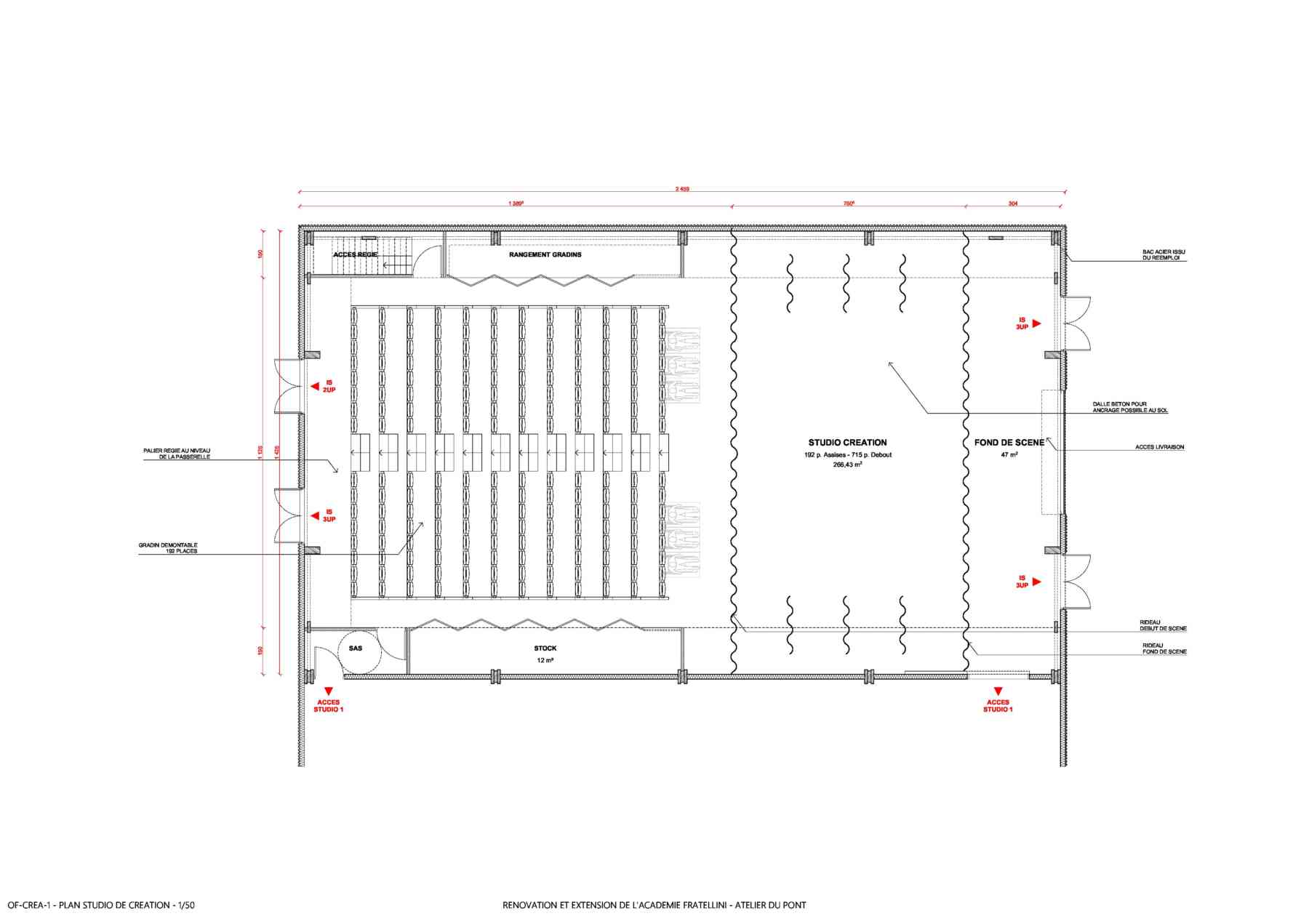
AG Studio a été désigné pour effectuer un important travail de programmation et de faisabilité pour permettre de développer une stratégie de refonte douce mais radicale du site dans le sens d’une meilleure adéquation thermique, sanitaire, scénotechnique. Le plus gros progrès préconisé consistait à sortir les bureaux de l’intérieur de la Grande Halle, à reconstruire un accueil et un vaste appentis dédié à la préparation artistique et de créer un plateau supplémentaire public ouvert à de nouvelles formes de création. La refonte scénotechnique du grand chapiteau, parcimonieuse, a également été prévue.
A la suite d’un long dialogue compétitif, l’Atelier du Pont a été désigné lauréat en 2020. Son projet est d’une parfaite continuité d’esprit avec l’architecture initiale, comme sa démarche de concertation dans une grande proximité avec les utilisateurs de l’Académie. La conception de durabilité est exemplaire et explore des matériaux et des protocoles de chantier particulièrement vertueux.